Vastgoedbeheer
Moreelsestraat 5 2
Moreelsestraat 5 2
Kenmerken
-
151m2
-
6
-
3
-
zonneterras
-
per direct
Omschrijving
Moreelsestraat 5 boven te huur:
Zeer luxueus, volledig gestoffeerd dubbel bovenhuis in Oud-Zuid met drie slaapkamers, twee badkamers een sauna
en ruim dakterras met fantastisch uitzicht!
Op een steenworp afstand van het concertgebouw ligt dit prachtige dubbele bovenhuis met een hoog afwerkingsniveau en een heerlijk royaal dakterras. Deze sfeervolle woning met een geheel eigen opgang is net volledig opgeknapt en gestoffeerd en ligt op de bovenste twee woonlagen van het pand. Alle voorzieningen zijn binnen handbereik zoals openbaar vervoer, uitvalswegen, diverse gezellige restaurants en kroegen en natuurlijk het Museumplein met de bekende musea en het Vondelpark.
Indeling:
Begane grond:
Voordeur met eigen opgang
2e verdieping:
Ruime woonkamer met zijkamer, gashaard, eetkamer met serre en open keuken voorzien van alle inbouwapparatuur en keukengerei.
Separaat toilet op de gang / overloop.
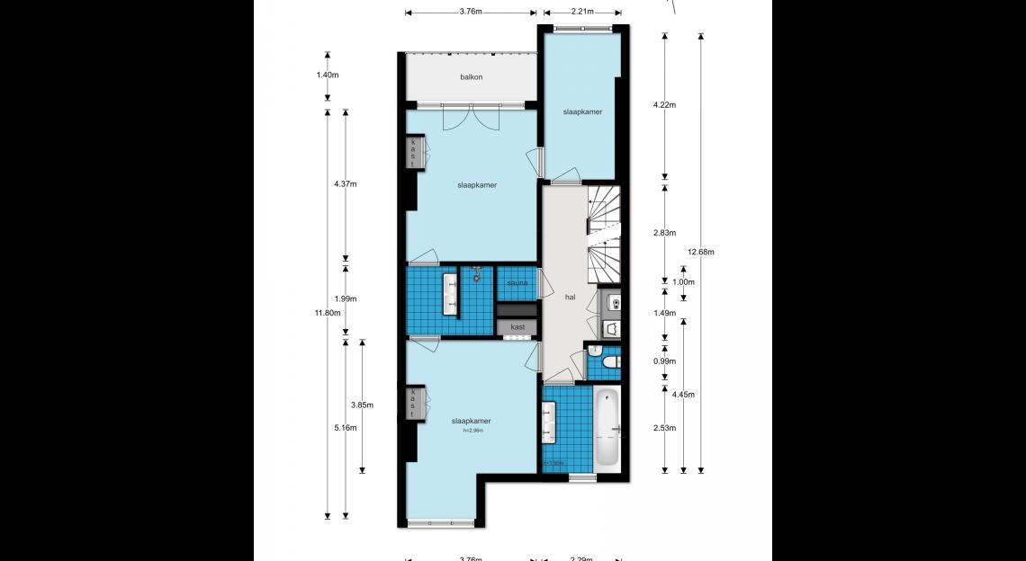
3e verdieping:
Drie slaapkamers, twee luxe badkamers, een sauna en een balkon aan de achterzijde.
4e verdieping:
Ruim dakterras van circa 50 m2 met dakopbouw en pantry.
Bijzonderheden:
- Betreft een luxe woning voorzien van stoffering.
- Verhuurder wil graag voor langere periode verhuren maar tenminste voor 12 maanden.
- Per direct beschikbaar
- Niet geschikt voor woningdelers
- Kosten voor gas, water, elektra en gemeentebelastingen zijn voor rekening van huurder.
- Huisdieren onder bepaalde voorwaarden toegestaan.
- Waarborgsom bedraagt tenminste €7.000,-
- Jaarlijkse indexering van de kale huurprijs middels CPI + max 3%
- Voorbehoud gunning eigenaar, mede na inzage salarisgegevens.
Om in aanmerking te kunnen komen voor het huren van een appartement dient u te voldoen aan financiële eisen;
- Inkomenseis van minimaal 3 keer de maandhuur als bruto inkomen.
- Voor ingang van de huurovereenkomst dient de eerste betaling voldaan te zijn (eerste maand huur en waarborgsom).
Interesse?
Bij interesse ontvangen wij graag zo spoedig mogelijk na de bezichtiging de volgende documenten:
§ Kopie ID huurders (graag foto en BSN doorhalen)
§ Werkgeversverklaring (deze kunt u opvragen bij u werkgever).
§ Drie recente loonstroken.
§ Kopie bankafschrift waarop het salaris zichtbaar is.
§ Uitdraai GBA.
§ Uw huidige adres en contact gegevens.
Bij een eigen onderneming ontvangen wij graag aanvullend:
§ Uittreksel van KvK
§ Inkomen aantonen met de inkomensverklaring van de belastingdienst of je IB aangifte
§ Recente Jaarcijfers, Balans, winst- en verliesrekening van de 2 afgelopen volledige boekjaren
§ Accountantsverklaring (of inkomensverklaring van de belastingdienst)
§ Kopie bankafschrift waarop het inkomen gestort wordt.
§ Uw huidige adres en contact gegevens
Wilt u bezichtigen?
Reageer op deze advertentie of stuur een mail naar verhuur@hoen.nl Voor vragen bel met de afdeling verhuur 0203054487
‘’Deze informatie is door ons met de nodige zorgvuldigheid samengesteld. Onzerzijds wordt echter geen enkele aansprakelijkheid aanvaard voor enige onvolledigheid, onjuistheid of anderszins, dan wel de gevolgen daarvan. Alle opgegeven maten en oppervlakten zijn indicatief.”
Foto's
€
3.500
,-
per maand
-
1071 BJ
-
AMSTERDAM