Vastgoedbeheer
Nassaukade 157 3
Nassaukade 157 3
Kenmerken
-
144m2
-
5
-
4
-
balkon, dakterras
-
per direct
Omschrijving
It is not possible to schedule an appointment by phone!
Per direct beschikbaar: Onlangs zeer mooi gerenoveerd appartement met 4 slaapkamers van ca. 144m2 aan de Nassaukade.
Op de grens van de Amsterdamse Jordaan en de Fredrik Hendrikbuurt!
Indeling:
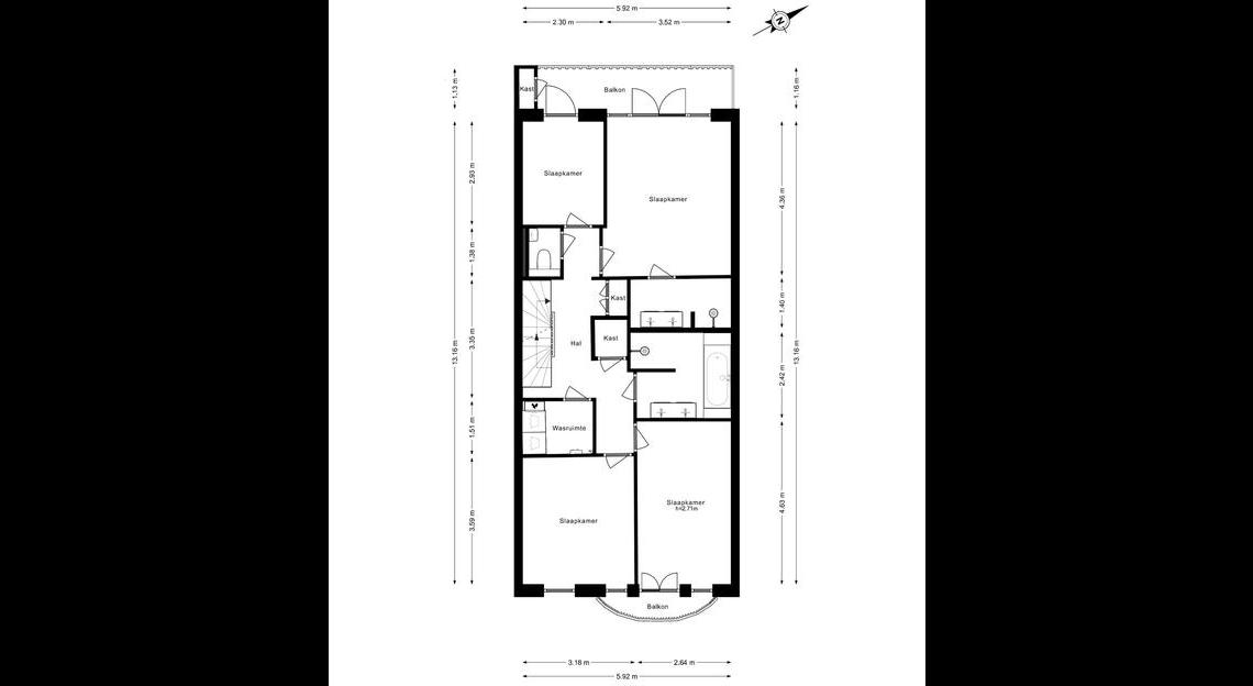
Entree via een portiek, eigen voordeur op de 3e verdieping, entree in de woning via een ruime hal.
Op de 3e verdieping bevinden zich de 4 slaapkamers, was ruimte, 2 badkamers en een separaat toilet.
De badkamer aan de master bedroom is voorzien van een inloopdouche en een breed wastafelmeubel. De tweede badkamer heeft een ligbad, een inloopdouche en een breed wastafelmeubel.
Op de 4e verdieping de zeer royale woonkamer met open keuken welke is voorzien met diverse inbouw apparatuur. En toegang tot het ruime balkon. En een separaat toilet.
Omgeving:
Gelegen aan het water op een centrale locatie in Stadsdeel West, nabij het Westerpark, het Haarlemmerplein, de Westerstraat en het Van Limburg Stirumplein. Waar een divers aanbod van winkels, restaurants, terrassen, traiteurs en koffietentjes te vinden is. Alle voorzieningen zoals cultuur en diverse supermarkten zijn in de buurt.
De Nassaukade is een bruisende straat in Oud-West. De sfeervolle voorgevels zijn rond 1900 gebouwd met erkers, speklagen en sierstenen. Op steenworp afstand bevindt zich de Jordaan, het Leidseplein en de Bellamybuurt met als bruisend middelpunt "De Hallen", waar een bioscoop, bibliotheek, hotel, creatieve bedrijven en diverse eetgelegenheden zijn gevestigd. De Albert Heijn en Marqt bevinden zich om de hoek, net als de avondwinkel Sterk, leuke kroegjes en diverse bekende restaurants.
Tevens is het appartement goed bereikbaar met het openbaar vervoer. Diverse tram en bushaltes. En uitstekend gelegen ten opzichte van de Ring A10, deze is met de auto binnen enkele minuten te bereiken.
Huurdetails:
- Kale huurprijs € 3.995,00
- Minimale huurperiode 1 jaar;
- Beschikbaar per direct;
- Niet voor woningdelers;
- Jaarlijkse indexering middels CPI;
- De waarborgsom bedraagt minimaal 2 maanden huur;
- Kosten voor de nutsbedrijven komen op naam van de huurder, de hoogte van de kosten zijn afhankelijk van uw eigen gebruik.
Om in aanmerking te kunnen komen voor het huren van een appartement dient u te voldoen aan financiële eisen;
- Inkomenseis van minimaal 3 keer de maandhuur als bruto inkomen.
- Voor ingang van de huurovereenkomst dient de eerste betaling voldaan te zijn (eerste maand huur en waarborgsom).
Bij interesse ontvangen wij graag zo spoedig mogelijk na de bezichtiging de volgende gegevens;
- Kopie ID huurders (let op juiste aanlevering persoonsgegevens)
- Werkgeversverklaring
- Drie recente loonstroken
- Kopie bankafschrift waarop uw naam en het salaris zichtbaar is
- Kopie bankpas van welke rekening de huur geïncasseerd kan worden
- Verhuurdersverklaring
- Huidige adres- en contactgegevens huurders
Een eigen onderneming? Dan ontvangen wij graag aanvullend:
- Uittreksel van KvK (niet ouder dan 4 weken)
- Inkomen aantoonbaar met de IB aangifte
- Accountantsverklaring (of IB aangifte)
- Recente Jaarcijfers, Balans, winst- en verliesrekening van de 2 afgelopen volledige boekjaren
Wilt u bezichtigen?
Reageer op deze advertentie of stuur een mail naar verhuur@hoen.nl
Bezichtigingen worden enkel online ingepland
Deze informatie is door ons met de nodige zorgvuldigheid samengesteld. Onzerzijds wordt echter geen enkele aansprakelijkheid aanvaard voor enige onvolledigheid, onjuistheid of anderszins, dan wel de gevolgen daarvan. Alle opgegeven maten en oppervlakten zijn indicatief
Foto's
€
3.995
,-
per maand
-
1053 LK
-
AMSTERDAM