Vastgoedbeheer
Pascalstraat 4 1
Pascalstraat 4 1
Kenmerken
-
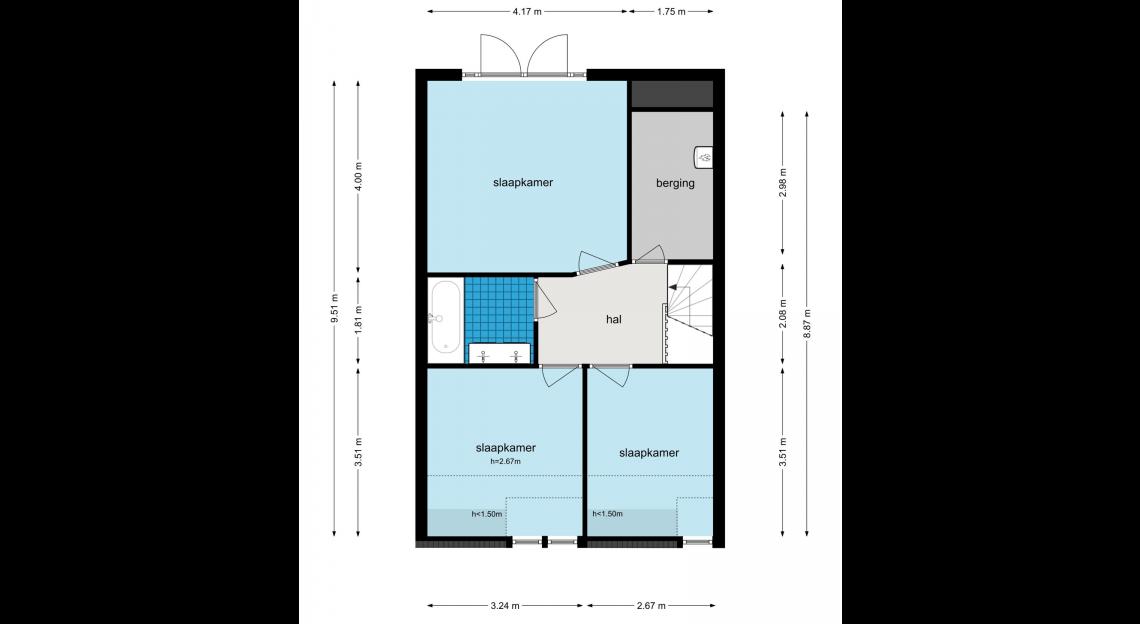
95m2
-
4
-
3
-
per direct
Omschrijving
No sharers, not even 2... no students... sorry!!
For English scroll down
Te huur per direct; een prachtige dubbele bovenwoning (turn key!) met drie slaapkamers in de immens populaire Watergraafsmeer. Om de hoek bij het Mariotteplein met de leukste speeltuin van Oost!
Indeling:
- Eigen entree;
- Lichte ruime woonkamer;
- Open moderne keuken voorzien van alle inbouwapparatuur;
- Badkamer voorzien van bad, douche en wastafel;
- Ruime master-slaapkamer voorzien van inbouwkast;
- Twee kleinere slaapkamers geschikt;
- Het gehele appartement is voorzien van een prachtig houten vloer en twee bergruimtes;
Huurdetails:
- Gestoffeerd;
- Minimale huurperiode 1 jaar;
- Beschikbaar per direct;
- Jaarlijkse indexering middels CPI +max 3%;
- De waarborgsom bedraagt minimaal 1 maand huur, afhankelijk van inkomen;
- Parkeervergunning direct verkrijgbaar;
- Kosten voor de nutsbedrijven komen op naam van de huurder, de hoogte van de kosten zijn afhankelijk van uw eigen gebruik.
Om in aanmerking te kunnen komen voor het huren van een appartement dient u te voldoen aan financiële eisen;
- Inkomenseis van minimaal 3 keer de maandhuur als bruto inkomen.
- Voor ingang van de huurovereenkomst dient de eerste betaling voldaan te zijn (eerste maand huur en waarborgsom).
Bij interesse ontvangen wij graag zo spoedig mogelijk na de bezichtiging de volgende gegevens;
- Kopie ID huurders (let op juiste aanlevering persoonsgegevens)
- Werkgeversverklaring
- Drie recente loonstroken
- Kopie bankafschrift waarop uw naam en het salaris zichtbaar is
- Verhuurdersverklaring
- Uittreksel Basisregistratie Personen (GBA/BRP)
- Huidige adres en contact gegevens huurders
Een eigen onderneming? Dan ontvangen wij graag aanvullend:
- Uittreksel van KvK (niet ouder dan 4 weken)
- Inkomen aantoonbaar met de IB aangifte
- Accountantsverklaring (of IB aangifte)
- Recente Jaarcijfers, Balans, winst- en verliesrekening van de 2 afgelopen volledige boekjaren
Wilt u bezichtigen?
Reageer op deze advertentie of stuur een mail naar verhuur@hoen.nl
Voor overige vragen, bel met onze verhuur afdeling op 020 305 44 87
Deze informatie is door ons met de nodige zorgvuldigheid samengesteld. Onzerzijds wordt echter geen enkele aansprakelijkheid aanvaard voor enige onvolledigheid, onjuistheid of anderszins, dan wel de gevolgen daarvan. Alle opgegeven maten en oppervlakten zijn indicatief
Beautiful family home offered in the Watergraafsmeer! Available per direct.
Spacious three bedroom apartment.
The house has been recently renovated and equipped with modern kitchen and bathroom, wooden floors and luxury finishes. Located in quiet residential area. Very child-friendly neighborhood with excellent schools in the area.
Layout:
- Private entrance with authentic details on the ground floor;
- A large living / dining room;
- Open kitchen with all appliances;
- Three bedrooms, one large, two smaller;
- Bathroom with bath shower, sink;
- Separate toilet in the downstairs hallway.
- Available directly;
- Minimum rental period of 12 months;
- No sharing allowed;
- Annual indexation of the basic rent by means of CPI + max 3%;
- Deposit is at least one months rent, depending on income.
Important information about renting a property with Hoen Vastgoedbeheer BV., Please read this carefully;
In order to qualify for renting an apartment, you must meet financial requirements;
- Income requirement of at least 3 times the monthly rent
- Before the start of the rental agreement the first payment must be paid (first month rent and deposit)
- Deposit is fixed at a minimum of minimal 1 month basic rent
- Costs for utilities are paid by the tenant, the amount of the costs depends on your own usage.
Interested?
We would like to receive the following documents as soon as possible after the viewing:
§ Copy ID tenant
§ Employer's statement
§ Three recent pay slips.
§ Copy of bank statement on which the salary is visible.
§ Printout of registration of the City where you are living
§ Your current address and contact details.
We would like to receive additional information in case of an own company:
§ Excerpt from Chamber of Commerce
§ Annual figures for the past 2 financial years
§ Auditor's statement
§ Copy of bank statement on which the income is paid.
§ Your current address and contact details
Please collect the required documents in advance.
Do you want to arrange a viewing?
Reply to this ad or send an email to verhuur@hoen.nl for further questions call us at 020-3054487
Learn more about HOEN!
Look at our website staging.hoen.nl
Foto's
€
1.850
,-
per maand
-
1098 PB
-
AMSTERDAM